OngoingActive

Garden Heights

Mathura, Uttar Pradesh
12-04-2012
Launch Date
Ongoing
Type
11-04-2017
Completion Date

Overview

Launch Date

12-04-2012

Completion Date

11-04-2017

RERA ID

UPRERAPRJ10222

Basic Details

Project TypeOngoing
Project CategoryResidential
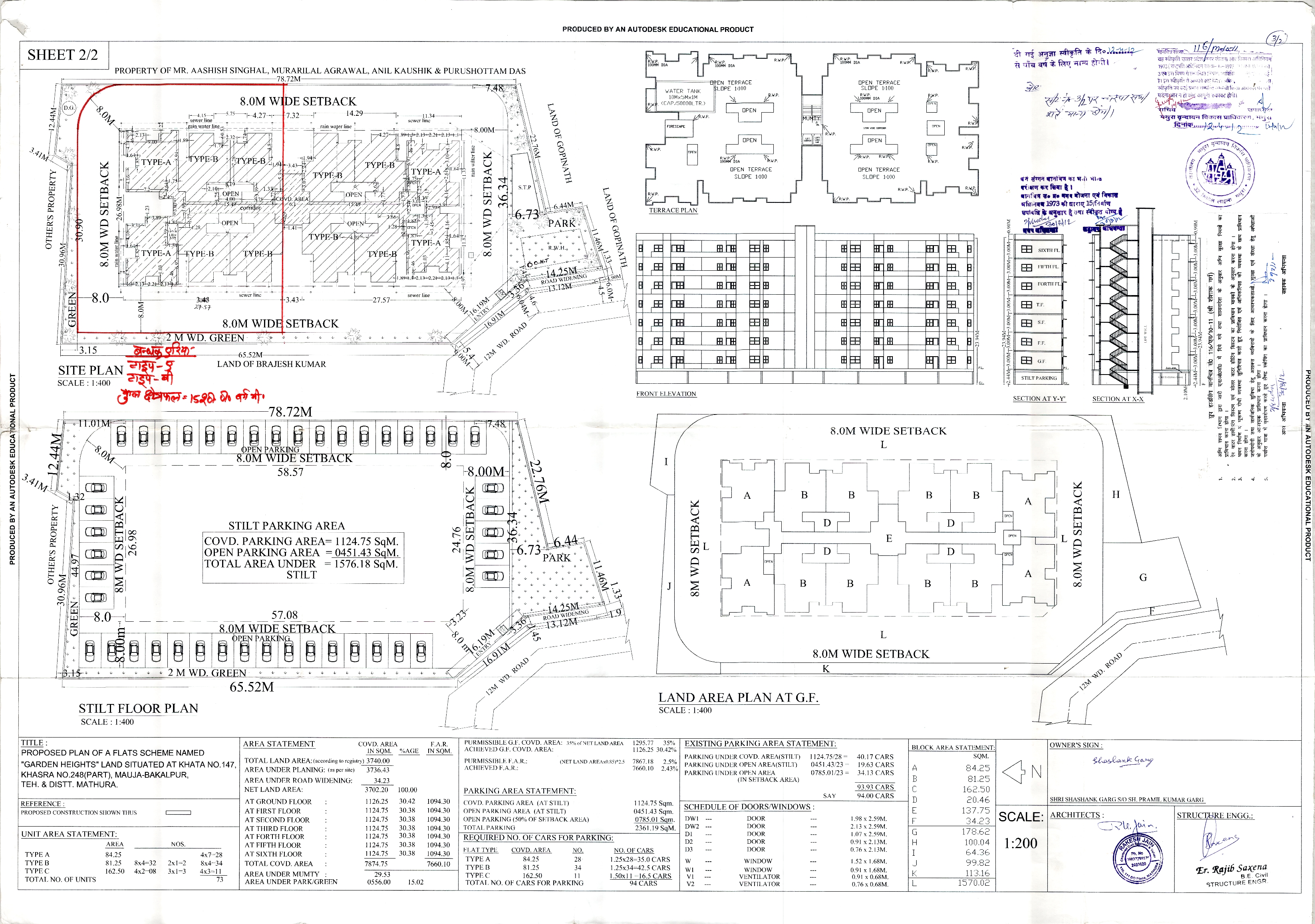
Total area in round figure (Sq.mt.)3740
Project NameGarden Heights
Registration Fee (in Rs.)24000
AddressNot specified
Village/Locality/Sector etc.Not specified
StateUttar Pradesh
Project Duration (In month)60
DistrictMathura
Original Start Date12-04-2012
TehsilMathura
Proposed Start Date12-04-2012
Sanctioning Competent AuthorityMathura-Vrindavan Development Authority
Project Cost (in Lacs)1600
Proposed Completion Date11-04-2017

Location

Latitude

27.499673

Longitude

77.635266

Bank Details

Account no.02682560004021
Name Of Account HolderBeriwal Constructions Co
Bank NameHDFC Bank
Branch AddressBhuteshwar, Mathura
Branch NameBhuteshwar
IFSC CodeHDFC0000268

Development Works

Demarcation of Plots

NA

Boundary Wall

2.5 METER HEIGHT SOROUNDING THE COMPLEX

Road Work

9 METER WIDE ROAD IN COMPLEX

Footpaths

AS PER SPECIFICATION

Water Supply Including Drinking Water Facilities

4 WATER TANK FOR WATER FACILITY

Sewer System

STP PLANT

Drain

RCC DRAINS CONNECTING THROUGH STP

Parks

AS PER REQUIREMENT SPECIFICATION

Tree Planting

VARIOUS TYPE OF PLANTS

Design For Electric Supply Including Street Lighting

AS PER ELECTRICAL PALN

Community Buildings

NA

Treatment and Disposal System of Sewage and Sullage water

STP PLANT SYSTEM

Solid Waste Management And Disposal System

AS PER SPECIFICATION

Water Conservation System

RAIN WATER HARVESITNG

Energy Management System Including Use of Renewable Energy

NA

Fire Protection And Fire Safety System

FIRE FIGHING EQUIPMENT WITH NECESSARRY MACHINERY

Social Infrastructure And Other Public Amenities Including Public Health Services

NA

Emergency Evacuation Services

NA

Other Miscellaneous Work

NA

Documents

Registry Document

No: 4524 | Date: 28-03-2011

Registry Document

No: 4524 | Date: 28-03-2011

Details of Encumbrances

Other Plan(If Any)

Proforma of Completion Certificate(Occupancy)

Development Work Plan

Commencement Certificate

Uploaded: 05-07-2018

Proforma of Application Form

Uploaded: 05-07-2018

Proforma of Allotment Letter

Uploaded: 05-07-2018

Proforma of Conveyance Deed

Uploaded: 05-07-2018

Waste Disposal Plan

Uploaded: 05-07-2018

Water Supply Plan

Uploaded: 05-07-2018

Electricity Supply Plan

Uploaded: 05-07-2018

Affidavit

Uploaded: 05-07-2018

CA CERTIFICATE

Uploaded: 05-07-2018

ARCHITECT CERTIFICATE

Uploaded: 05-07-2018

ENGINEERS CERTIFICATE

Uploaded: 05-07-2018

Authentic copy of Approval of Project

Uploaded: 13-08-2017

Permits

Orignal Permit No116/M-10-11
Orignal Permit Date12-04-2012
Valid Upto11-04-2017
Revalidated Permit No116/M-10-11
Revalidated Permit Date31-12-2020
Revalidated Permit Valid Upto31-12-2020
Permit Extendable Upto31-12-2020
End Date11-04-2017
Uploaded Approve LayoutOpen
Uploaded Sanctioned LetterOpen
Uploaded Approved MapOpen
Uploaded Floor Plan Of All TypesOpen
Uploaded Project SpecificationsOpen
Uploaded Sajra DetailNot Specified

Project Team

Contractor Name (if any)Not specified
Contractor AddressNot specified
Architect NameAlok Agrawal
Architect AddressMahavidhya Colony, Mathura
Architect Licence NumberReg. No. 3
Structural Engineer NameAlok Agrawal
Structural Engineer AddressMahavidhya Colony, Mathura
Mobile number(Project Co-ordinator)9837789558

Land Details

AFS

Showing 1 blocks with 7 units

Property Summary

Total Carpet Area

6524.28

70226.70 ft²

Total Units

84

1 different types

Blocks & Floors

1

7 floors across all blocks

Parking

0

0 garages, 0 open

Average unit size:77.67
Balconies:84
Parking ratio:0.00 per unit

Block GARDEN HEIGHTS

7 units

Khasra Details

Total Area

3740.00

40256.99 ft²

1 plot
Khasra
TypeKhasra
Khasra/Plot No248
Area(In Sq. Mt.)3740

Other Details

Contractor Name (if any)Not specified
Contractor AddressNot specified
Architect NameAlok Agrawal
Architect AddressMahavidhya Colony, Mathura
Architect Licence NumberReg. No. 3
Structural Engineer NameAlok Agrawal
Structural Engineer AddressMahavidhya Colony, Mathura
Mobile number(Project Co-ordinator)9837789558